THE NEW SYSTEM FOR BUILDING
 PCH PRO LIMITED

Pokud máte vlastní představu o Vašem bydlení, naše společnost Vám zajistí kompletní Projektovou dokumentaci od studie po prováděcí projekt.


TYPOVÉ DOMY

Klasik 2

viz_3_3 viz_2_1 viz_1_3

Základní údaje
počet osob2-4
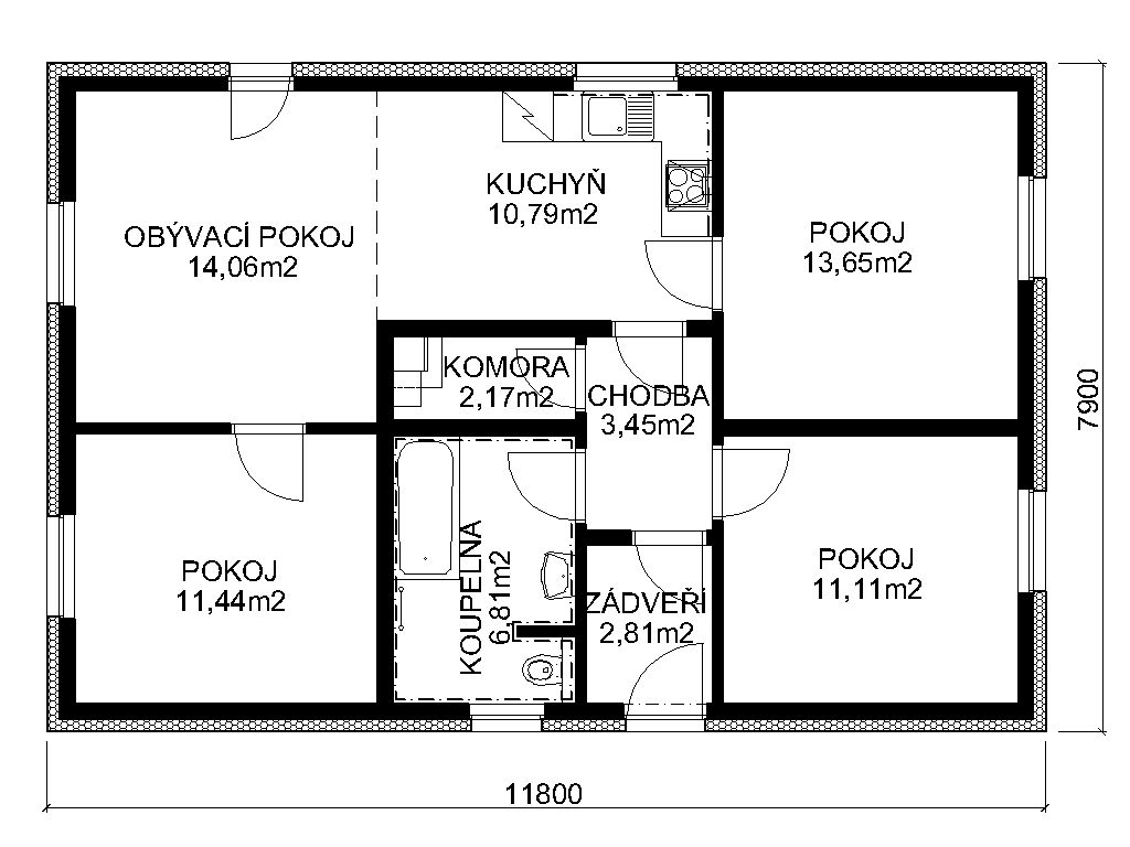
Půdorys - normální okna
pud_1_normal
obytné místnosti4
kategorie4+KK
zastavěná plocha93,22 m2
obestavěný prostor405,5 m3
celková užitková plocha76,29 m2
celková obytná plocha61,05 m2
sklon střechy35,0°
výška hřebene střechy od ±0,0005,7 m
doporučená orientace hlavního vstupuS, SZ
vhodný pozemekrovinatý či mírně svažitý
cena stavby "Na klíč"1298000,-Kč bez DPH
cena hrubé stavby895000,-Kč bez DPH
doba výstavby90 pracovních dnů

Ceník projektové dokumentace
Malý projekt (pro zahájení řízení pro vydání vyjádření správců sítí a orgánů státní správy4000,-Kč
Průkaz energetické náročnosti budovy5000,-Kč
Statické posouzení budovy10000,-Kč
PD typového projektu pro SP20000,-Kč
PD typového projektu pro SP s drobnými změnami (změny umístění a velikosti oken)25000,-Kč
PD typového projektu pro SP s ostatními změnami35000,-Kč
Zajištění ohlášení stavby nebo vyřízení SP15000,-Kč
Vytýčení stavby8000,-Kč
PD inženýrských sítí10000,-Kč
PD pro RD v nízkoenergetickém provedeníindividuální
Všechny ceny jsou uvedeny bez DPH.

5 důvodů proč si vybrat tento rodinný dům
Možnost výběru zděného domu nebo dřevostavby
Bezkonkurenční doba výstavby rodinného domu
Nízké provozní náklady na topení díky technickému řešení RD, kdy dům lze provézt ve variantě nízkoenergetického domu s použitím tepelného čerpadla, nebo ve variantě pasivního domu s rekurperační jednotkou
Možnost z velkého výběru nadstandardního vybavení rodinného domu s inviduální přístupem
Zajistíme Vám nejvýhodnější financování rodinného domu


Vizualizace
viz_1_1 viz_1_2 viz_1_3 viz_1_4 viz_2_1 viz_2_2 viz_2_3 viz_2_4 viz_3_1 viz_3_2 viz_3_3 viz_3_4 viz_4_1 viz_4_2 viz_4_3 viz_4_4

Pohledy
poh_1_1 poh_1_2 poh_1_3 poh_1_4 poh_2_1 poh_2_2 poh_2_3 poh_2_4 poh_3_1 poh_3_2 poh_3_3 poh_3_4 poh_4_1 poh_4_2 poh_4_3 poh_4_4

Interiéry - obývací pokoj
int_1_obyvaci_pokoj_1 int_1_obyvaci_pokoj_2 int_1_obyvaci_pokoj_3 int_1_obyvaci_pokoj_4

Interiéry - kuchyň
int_2_kuchyn_1 int_2_kuchyn_2 int_2_kuchyn_3 int_2_kuchyn_4

Interiéry - ložnice
int_3_loznice_1 int_3_loznice_2 int_3_loznice_3 int_3_loznice_4

Interiéry - pokoj
int_4_pokoj_1 int_4_pokoj_2 int_4_pokoj_3 int_4_pokoj_4

Interiéry - pracovna
int_4_pokoj_1 int_4_pokoj_2 int_4_pokoj_3 int_4_pokoj_4

Interiéry - koupelna
int_5_koupelna_1 int_5_koupelna_2 int_5_koupelna_3 int_5_koupelna_4